Zwanenhalssteeg

Nieuw

3811BP Amersfoort

Appartement | Bestaande bouw

  • Woonoppervlakte 93 m²
  • 3 kamers
  • Oplevering kaal
  • Beschikbaar per 1 mei 2026
€ 1.600,00

Kale huur/per maand

Er staat geen bezichtiging gepland

korianderstraat 01
korianderstraat 01
korianderstraat 01
korianderstraat 01
korianderstraat 01
korianderstraat 01
korianderstraat 01
korianderstraat 01
korianderstraat 01
korianderstraat 01
korianderstraat 01
korianderstraat 01
korianderstraat 01
korianderstraat 01
korianderstraat 01
korianderstraat 01
korianderstraat 01
korianderstraat 01
korianderstraat 01

Omschrijving

Beschikbaar per 1 mei 2026 | Ruim en licht 3-kamerappartement in hartje Amersfoort

Wakker worden midden in het bruisende centrum van Amersfoort? In dit royale 3-kamerappartement ervaar je elke dag de perfecte mix van historische charme en modern gemak. Stap de deur uit en je staat direct tussen sfeervolle straatjes, gezellige terrassen en een veelzijdig aanbod aan winkels en restaurants. Op steenworp afstand vind je het geliefde Lieve Vrouweplein – dé plek waar de stad tot leven komt.

Met alle voorzieningen binnen handbereik – van het centraal station en supermarkten tot musea en scholen – woon je hier uiterst comfortabel. Geniet van een diner op De Hof, haal verse producten op de markt of ontdek spontaan alles wat de binnenstad te bieden heeft.

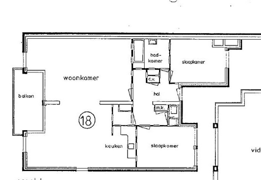
Indeling
Bij binnenkomst via de hal heb je toegang tot twee ruime slaapkamers, een separaat toilet, de badkamer en de lichte woonkamer met open keuken. Dankzij de grote ramen baadt de woonkamer in natuurlijk licht, wat zorgt voor een aangename en ruimtelijke sfeer.

De open keuken sluit naadloos aan op de leefruimte en is voorzien van diverse inbouwapparatuur, zoals een inductiekookplaat, afzuigkap, koelkast met vriesvak en een vaatwasser. Vanuit de keuken stap je zo het ruime balkon op – een heerlijke plek om in de zon te ontspannen.

De badkamer is praktisch ingericht en beschikt over een ligbad, douche en wastafel.

Interesse? Vraag een bezichtiging aan via www.nederwoon.nl.

Bij NederWoon Verhuurmakelaars streven we ernaar om betrouwbare, actuele en volledige informatie te bieden. Ondanks onze zorgvuldigheid kan het voorkomen dat gegevens op onze website onjuistheden of onvolledigheden bevatten. Aan de inhoud van deze website kunnen daarom geen rechten worden ontleend.

Voor de meest actuele informatie of bij vragen kun je altijd contact met ons opnemen. Wij helpen je graag verder!

Huurprijs

Kale huur 1.600,00
Voorschot servicekosten 65,00
Totale huur per maand 1.665,00

Voorwaarden

Borgsom 1.665,00
Huurperiode Minimaal 12 maanden daarna onbepaalde tijd
Studenten toegestaan Ja
Alleen studenten Nee
Max aantal personen 2
Woningdelers Nee
Huisdieren toegestaan Nee

Kenmerken

Bouw
Soort woonruimte Appartement
Soort bouw Bestaande bouw
Verhuur type Zelfstandig
Afwerking Kaal
Oppervlakte
Woonoppervlakte 93 m²
Oppervlakte berging 4 m²
Inhoud 252
Indeling
Aantal kamers 3
Aantal badkamers 1
Aantal toiletten 1
Gelegen op woonlaag 2
Lift aanwezig Ja
Energie
Energielabel D
Dubbel glas
Verwarming Centrale verwarming
Keuken
Warm water CV-Ketel
Soort keuken Eigen keuken in woonkamer
Inbouwapparatuur Afzuigkap, Electrische kookplaat, Koelkast met vriesvak, Vaatwasser,
Buitenruimte
Soort buitenruimte Balkon
Oppervlakte 7 m²