Statenplein

3051HN Rotterdam

Appartement | Bestaande bouw

  • Woonoppervlakte 75 m²
  • 2 kamers
  • Oplevering kaal
  • Beschikbaar per 1 januari 2026
€ 1.450,00

Kale huur/per maand

De volgende bezichtiging is op: 16-12-2025

korianderstraat 01
korianderstraat 01
korianderstraat 01
korianderstraat 01
korianderstraat 01
korianderstraat 01
korianderstraat 01
korianderstraat 01
korianderstraat 01
korianderstraat 01
korianderstraat 01
korianderstraat 01
korianderstraat 01
korianderstraat 01
korianderstraat 01
korianderstraat 01
korianderstraat 01
korianderstraat 01

Omschrijving

In de voormalig Christus Koningkerk middenin Hillegersberg bieden wij dit unieke appartement aan. Het complex heeft een unieke uitstraling door alle glas in lood ramen. De kerk ligt middenin de wijk Hillegersberg. Met de auto ben je binnen 5 minuten op de snelweg en 10 minuten fietsen sta je in het centrum van Rotterdam.

Indeling:
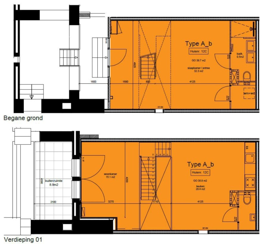
Begane grond:
Centrale entree. Vervolgens ontvangst hal met toegang tot de parkeergarage en fietsenstalling. Hier zit ook de trap en lift naar de etages.

Begane grond
Centrale hal met een kleine trap naar de voordeur van het appartement.
Ruime kamer met veel ruimte om een slaapkamer in te richten. Dit is geen afgesloten slaapkamer.
Toegang tot de badkamer welke is voorzien van een dubbele wastafel, zwevend toilet, inloop douche en design radiator.
Naast de badkamer is nog een wasruimte aanwezig waar je een wasmachine en droger kunt plaatsen.
In de ruimte is een open trap naar de eerste etage.

1e etage
Deze is verdeeld in een woon- en eetkamer op verschillende hoogtes. Het plafond is zeer hoog.
Het woonkamer deel heeft enorme ramen waardoor er veel licht binnen valt. Vanaf hier heb je toegang tot het ruime terras.
Via 3 trede stap je de eetkamer en keuken in. De keuken is modern en voorzien van verschillende inbouw apparatuur. Denk aan inductie kookplaat, afzuigkap, vaatwasser en koelkast.

Bijzonderheden:
– Gelegen vlakbij het centrum van Rotterdam.
- Verplichte afname parkeerplaats in de ondergelegen parkeergarage €80,- per maand;
– Servicekosten €140,- per maand;
– Vloerverwarming in het hele appartement (uitzondering badkamer, deze heeft een designradiator);

De huidige bewoners hebben om de slaapkamer af te schermen een prachtige wand geïnstalleerd bestaande uit glas en staal om de slaapkamer van de entree te scheiden. Deze en andere items worden ter overname aangeboden!

Interesse in dit prachtige unieke appartement? Vraag dan via je gebruikersaccount een bezichtiging aan.

Bij NederWoon Verhuurmakelaars doen we ons best om betrouwbare en actuele informatie te geven. We streven naar foutloze en complete gegevens, maar we kunnen helaas niet garanderen dat alles altijd perfect is. Daarom kun je geen rechten ontlenen aan de informatie op onze website. Neem gerust contact met ons op voor de laatste updates.

Huurprijs

Kale huur 1.450,00
Voorschot servicekosten 140,00
Parkeerplaats 80,00
Totale huur per maand 1.670,00

Voorwaarden

Borgsom 1.670,00
Huurperiode Minimaal 12 maanden daarna onbepaalde tijd
Studenten toegestaan Ja
Alleen studenten Nee
Max aantal personen 2
Woningdelers Nee
Huisdieren toegestaan Nee

Kenmerken

Bouw
Soort woonruimte Appartement
Soort bouw Bestaande bouw
Verhuur type Zelfstandig
Afwerking Kaal
Oppervlakte
Woonoppervlakte 75 m²
Oppervlakte berging 3 m²
Inhoud 225
Indeling
Aantal kamers 2
Aantal badkamers 1
Aantal toiletten 2
Gelegen op woonlaag 1
Lift aanwezig Ja
Energie
Energielabel A
Dubbel glas
Verwarming Vloerverwarming
Keuken
Warm water Warmtepomp
Soort keuken Eigen keuken in woonkamer
Inbouwapparatuur Afzuigkap, Vaatwasser, Inductie kookplaat, Combi-magnetron, Koelkast met vriesvak,
Buitenruimte
Soort buitenruimte Balkon
Oppervlakte 9 m²